-
Manual del propietario
- Propietarios
- Proceso Emparejamiento
- Página de mantenimiento
- Nuevo Qashqai Nissan Connect
- Mantenimiento y servicio
- Asistencia seguro y garantía
- Accesorios y equipos
- Ofertas Especiales
- Noticias de campañas
- Promesa Cliente
- YOU+
- Infoentretenimiento en tu coche
- Aplicaciones NissanConnect: Compatibilidad de vehículos
Nissan X-Trail con e-POWER (español) 2024 Manuales del propietario
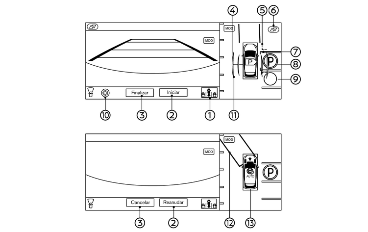
8.34.4. Pantalla del ProPILOT Park

Icono de selección del método de estacionamiento:
Indica cuál es el método de estacionamiento que está seleccionado actualmente. Pulse para cambiar el método de estacionamiento. Consulte
.[Iniciar]/[Reanudar]:
Pulse esta opción para iniciar el control del ProPILOT Park.
[Finalizar]/[Cancelar]:
Pulse esta opción para desactivar el sistema ProPILOT Park.
Icono de detección de plaza de aparcamiento:
Indica en qué lado se detecta la plaza de aparcamiento durante la búsqueda de plazas de aparcamiento.
: Se detecta una plaza de aparcamiento en el lado derecho.
: Se detecta una plaza de aparcamiento en el lado izquierdo.Líneas guía de holgura (rojo):
Indica la zona aproximada por la que pasará el vehículo cuando se active el control de aparcamiento.
Icono de ajuste del rectángulo guía de aparcamiento (
):Pulse esta opción para ajustar la ubicación del rectángulo guía de aparcamiento. Consulte
.Rectángulo guía de aparcamiento (verde):
Indica la posición aproximada en la que el vehículo quedará estacionado. El rectángulo se vuelve azul claro cuando el control de aparcamiento está activado.
Señal (P) (azul):
Indica la posición en la que el vehículo quedará estacionado.
Señal ○ (sin color):
Muestra que además de la posición de aparcamiento que está seleccionada, es posible seleccionar otra posición de aparcamiento diferente. Al tocarlo, el icono cambiará a azul.
Icono de ajustes (
):Pulse este icono para cambiar los ajustes de ProPILOT Park.
Líneas guía del área de búsqueda de plaza de aparcamiento (verde claro):
Indica que el sistema está actualmente buscando una plaza de aparcamiento. Las líneas también sirven como guía de posicionamiento del vehículo durante la búsqueda. Consulte
.Rectángulo de la posición de cambio de dirección (verde):
Indica la posición en la que realizar el próximo cambio de marcha.
Icono de control del sistema ProPILOT Park (
):El estado del sistema ProPILOT Park se indica con colores.
Verde: El control de aparcamiento está activado.
Gris: El control de aparcamiento no está activado.

Cuando los limpiaparabrisas están en funcionamiento o cuando se detecta agua u otras sustancias en la lente de la cámara, se mostrará el icono
. Cuando se pulsa el botón ${1} , se limitarán las posiciones de aparcamiento detectadas.